中古マンション
新着物件
ランフォルセ枚方天の川
3,790万円(税込)
1/27
2/27
3/27
4/27
5/27
6/27
7/27
8/27
9/27
10/27
11/27
12/27
13/27
14/27
15/27
16/27
17/27
18/27
19/27
20/27
21/27
22/27
23/27
24/27
25/27
26/27
27/27
物件コメント
◆京阪本線「枚方市」駅 徒歩10分♪
■最上階 ■南向きバルコニー ■食洗機・浄水器付 ■浴室乾燥機付 ■レースカーテン付
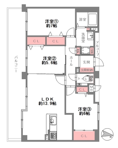
物件情報
- 所在地
- 枚方市磯島南町7
- 交通
- 京阪本線枚方市駅徒歩10分
- 価格
- 3,790万円(税込)
- 間取り
- 3LDK
- 土地面積
- -
- 専有面積
- 75.5㎡
- 所在階/階数
- 7階/地上7階建
- 構造
- RC造
- 築年月
- 1999年7月
- 総戸数
- 58戸
- バルコニー面積
- 19.52㎡
- テラス面積
- -
- 専用庭面積
- -
- 管理費
- 9,430円/月
- 修繕積立金
- 18,670円/月
- 地役権
- -
- 用途地域
- 準工業地域
- 都市計画
- 市街化地域
- 地目
- -
- 権利関係
- 所有権
- 現況
- 空き
- 引渡し
- 相談
- 設備
- 都市ガス
≪改装リフォーム済≫2025年11月
・システムキッチン新調 ・洗面化粧台新調
・浴室ユニットバス新調 ・便器・温水洗浄便座新調
・クロス貼替え ・フローリング貼替え
- 管理形態
- 委託(通勤)
- 管理会社
- 三光企画(株)
- 駐車場
- -
- 駐輪場
- -
- 備考
- ●駐車場:月額9,000円~14,000円 ●固定資産税:2025年度115,944円 ●大規模修繕工事検討中(詳細未定)●修繕積立金値上げ予定 理事会で検討中(詳細未定) ●立体駐車場機械更新予定あり 更新後は使用料が月額1,000円値上げ予定。 ●ペット:不可 ●アルコープ面積:1.15㎡ ◎設備保証の対象は新設の設備に限ります。 ◎設置されている家具・小物・照明はディスプレイ用です。家具・照明付き販売ではございません。
- 取引態様
- 業者直(契約時媒介)
- 物件登録日
- 2026年01月16日
- 物件更新日
- 2026年01月17日
- 次回更新予定
- 2026年01月31日